Watch our Auctions Live!
Watch our Auctions Live!

Brand New | Architecturally Designed Townhouse in Prime Sandringham

2/6C Kingsway Avenue

3

2

0

3

2


share

Marketed by Harry Taylor & Ling Gao

Brand New | Architecturally Designed Townhouse in Prime Sandringham


2/6C Kingsway Avenue

Sandringham, Auckland

$795 / Week  

Marketed by Harry Taylor & Ling Gao

Be the first to live in this beautifully finished, brand new home at Kingsway Residences - an exclusive development of just eight architecturally designed homes in one of Sandringham's most convenient locations.

Positioned moments from St Lukes Mall, Wagner Place Shopping Centre, Dominion Road, and Sandringham Village, this residence delivers the perfect blend of modern living and everyday convenience.

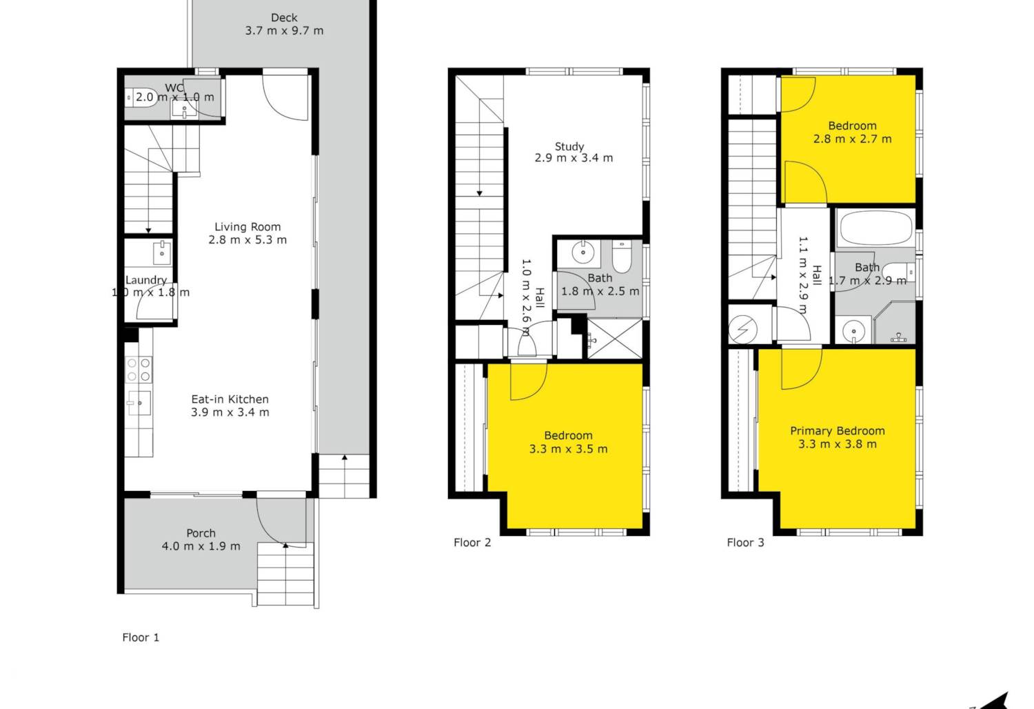
Spanning approximately 114m² (more or less), the thoughtfully designed floor plan offers two generous living areas, making it ideal for families, professionals, or those working from home.

Property features: • Brand new - never lived in • Three bedrooms, two bathrooms + two living spaces • Designer kitchen with Fisher & Paykel appliances • Open-plan living & dining flowing to a private balcony • Air conditioning / heating • Architecturally designed, low-maintenance living • Enjoy easy access to city-bound bus routes, motorway links, and nearby green spaces including Warren Freer Park and Gribblehirst Park - perfect for weekend walks or time outdoors.

An exceptional opportunity to secure a high-quality, brand new rental in a tightly held location. Contact us today to arrange your viewing.

Property Details

Property ID RMU44536

Available
03-02-2026
Category
Townhouse
Status
Current
Bedrooms
3
Bathrooms
2
Rent
$795 / Week
Bond
$3180
Pets
No
Furnished
No
Smokers
No

Features



Local Schools

* While every effort has been made to ensure the information displayed is accurate, please check details directly with the school before making decisions based on this information.

Primary
Intermediate
Secondary
Edendale School (Auckland) - 260m away
Years 1-6
Co-ed
419 Sandringham Road
09 846 6340


Balmoral School (Auckland) - 960m away
Years 1-8
Co-ed
19 Brixton Road
09 638 7960


Balmoral School (Auckland) - 960m away
Years 1-8
Co-ed
19 Brixton Road
09 638 7960


Kowhai Intermediate - 1.9km away
Years 7-8
Co-ed
26 Onslow Road
09 846 7534


Mt Albert Grammar School - 880m away
Year 9-15
Co-ed
36 Alberton Ave
09 846 2044



Show on map

Make an Appointment

Send an enquiry about this property to the agent


Harry Taylor


Head of New Business & Letting

Mobile: 022 560 3069

Ling Gao


Head of Property Management

Mobile: 021 588 048